$495,000
 $2,657 est/mo Sourced by Back At You

6412 Xenium Lane,Maple Grove, MN 55311

Maple Grove, MN 55311

Share:

Description

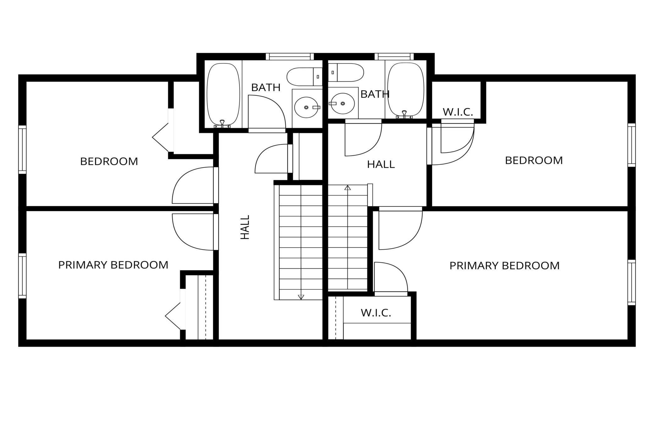
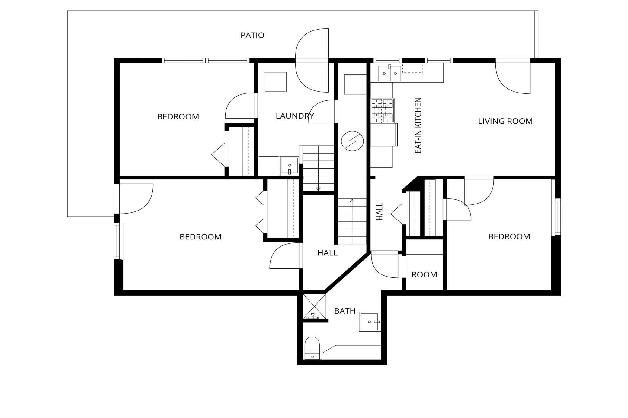
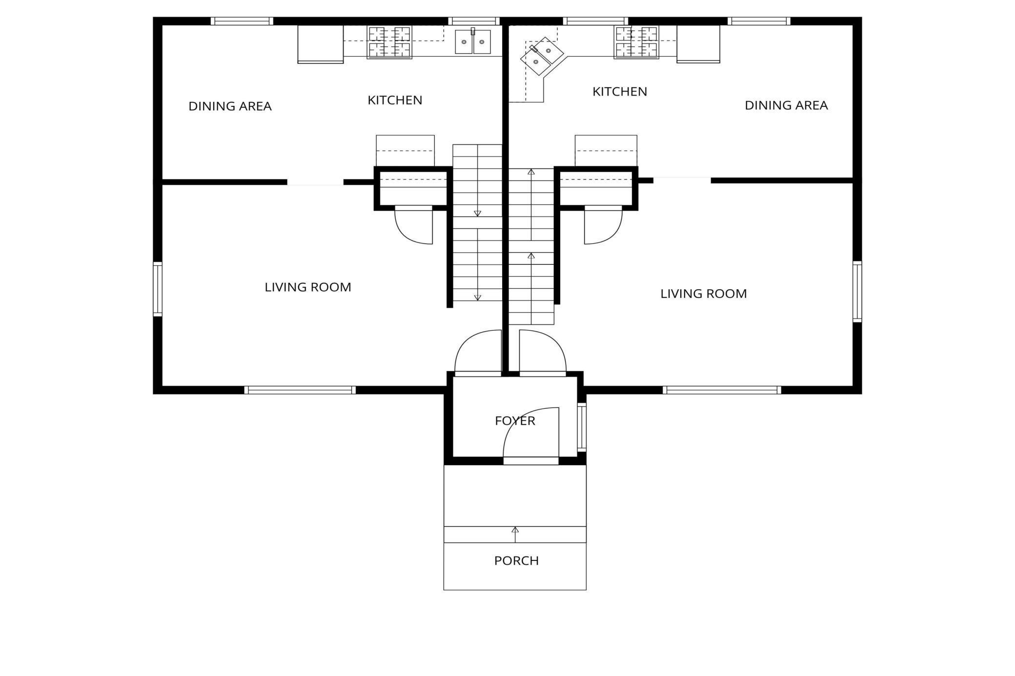
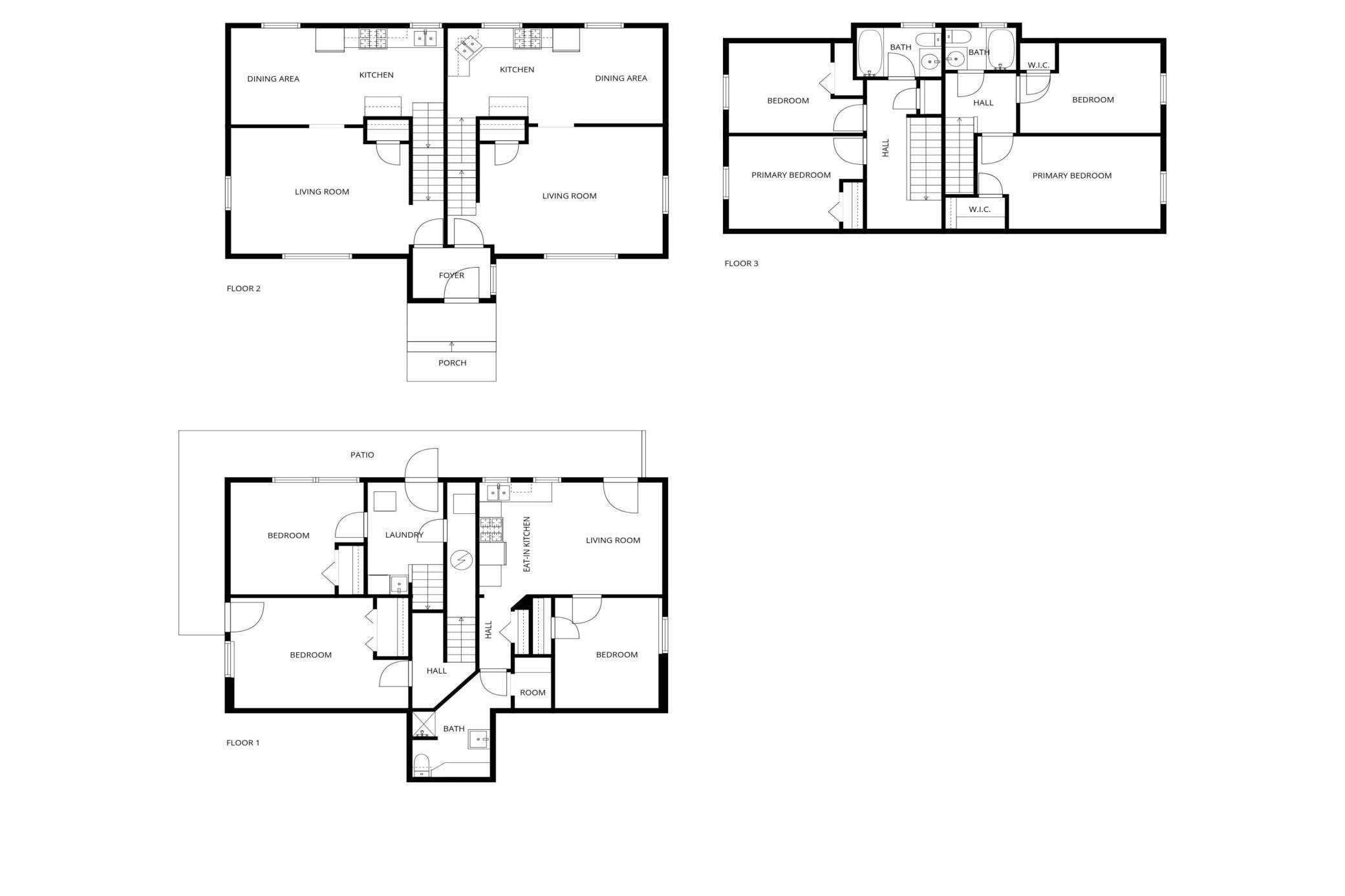
Fantastic Triplex Opportunity in Prime Maple Grove Location! Don't miss this incredible opportunity to own a well-maintained triplex nestled in a desirable Maple Grove neighborhood surrounded by single-family homes. The property features two 3-bedroom, 1-bath units and one 1-bedroom, 1-bath unit. The 1-bedroom unit currently leased on a month-to-month basis, while both 3-bedroom units are vacant and move-in ready-making this a perfect fit for either owner-occupants or investors looking to place their own tenants. Each unit has been recently refreshed, and the property shows beautifully with clean interiors. The building is ready for immediate occupancy Utilities are currently paid by the owner, offering flexibility for future lease structuring. Whether you're seeking strong rental income or a live-in investment in a sought-after location, this triplex offers outstanding potential! is Units 1 and 2 (the 3 bedroom units) are available to see on first showings. The 3rd unit is available for 2nd showings or during inspection periods. Please see supplements for additional income and expense information.

Details

MLS #6808145
Listing TypeFor Sale
Sub-TypeResale
StatusPending
Year1965
Days On Site16
Listing Provided ByEdina Realty, Inc. | Joshua Sanderson

Features

SQ Feet2,524
BasementY
Story(s)2
Units3
ZoningResidential-Multi-Family
Acreage0.32

Interior

HeatingBaseboard, Hot Water

Exterior

RoofAge Over 8 Years
Construction MaterialsShake Siding, Wood Siding

Parking

Parking FeaturesAsphalt, Parking Lot, Paved, Unassigned, Open

Taxes

Property6251

Area Information

StateMN
CountyHennepin
CityMaple Grove
Zip Code55311
Community NamePlentywood Add
School District279
High SchoolOsseo
Sourced by Back At You

Request a showing

Request a showing

Loading Form

 Listings courtesy of Northstar MLS as distributed by MLS GRID. 

Based on information submitted to the MLS GRID as of November 7, 2025 at 8:57:56 AM PST All data is obtained from various sources and may not have been verified by broker or MLS GRID. Supplied Open House Information is subject to change without notice. All information should be independently reviewed and verified for accuracy. Properties may or may not be listed by the office/agent presenting the information.

The Digital Millennium Copyright Act of 1998, 17 U.S.C. § 512 (the “DMCA”) provides recourse for copyright owners who believe that material appearing on the Internet infringes their rights under U.S. copyright law. If you believe in good faith that any content or material made available in connection with our website or services infringes your copyright, you (or your agent) may send us a notice requesting that the content or material be removed, or access to it blocked. Notices must be sent in writing by email to DMCAnotice@MLSGrid.com.

“The DMCA requires that your notice of alleged copyright infringement include the following information: (1) description of the copyrighted work that is the subject of claimed infringement; (2) description of the alleged infringing content and information sufficient to permit us to locate the content; (3) contact information for you, including your address, telephone number and email address; (4) a statement by you that you have a good faith belief that the content in the manner complained of is not authorized by the copyright owner, or its agent, or by the operation of any law; (5) a statement by you, signed under penalty of perjury, that the information in the notification is accurate and that you have the authority to enforce the copyrights that are claimed to be infringed; and (6) a physical or electronic signature of the copyright owner or a person authorized to act on the copyright owner’s behalf. Failure to include all of the above information may result in the delay of the processing of your complaint.

Contact

Learn More About This Property

StateMN
CountyHennepin
CityMaple Grove
Zip Code55311
Community NamePlentywood Add
School District279
High SchoolOsseo
Sourced by Back At You
Nearby Listings (Within 1/2 mile)
Price: $371K - $618K
sqft: 1,500 - 3,000
Nearby Listings Property ImageNearby Listings Details
13940 64th Avenue Property Photo 1
$410,000
13940 64th Avenue
Maple Grove, MN 55311
6510 Glacier Lane Property Photo 1
$495,000
6510 Glacier Lane
Maple Grove, MN 55311
Listing Updated: November 6, 2025 at 1:44:54 PM PST
Real Estate Links Our Domains